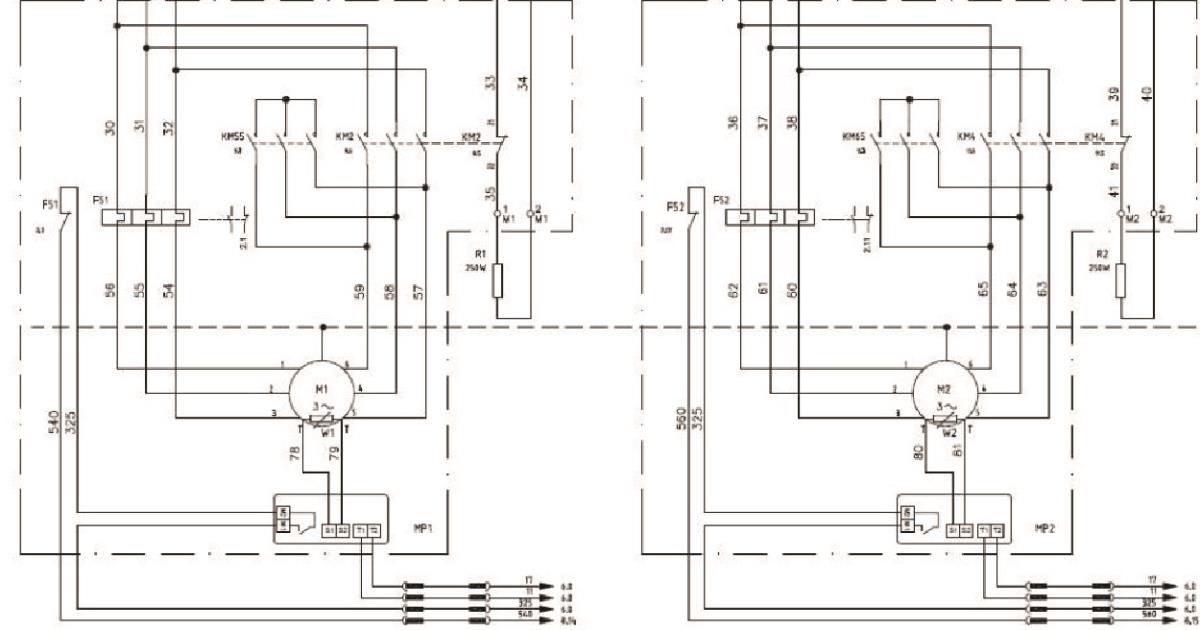
Num contexto industrial cada vez mais exigente, a capacidade de ler e interpretar esquemas elétricos de potencia, comando e controlo é uma competência essencial para técnicos de manutenção e eletricidade. Uma interpretação incorreta pode significar perda de tempo, erros de intervenção e riscos de segurança.
Este curso responde a essa necessidade prática. Fornece bases sólidas na leitura de esquemas de comando e potência e acrescenta uma vertente diferenciadora: a representação unifilar em software simples. O formando não só compreende o esquema, como passa a conseguir documentar, atualizar e comunicar soluções técnicas de forma clara e estruturada.
O presente curso visa preparar os formandos para uma correta leitura e interpretação de esquemas elétricos de potência, comando e controlo, identificando símbolos, componentes, circuitos e a lógica de funcionamento, bem como desenhar esquemas unifilares em software.
Assim, no final do curso, o formando deverá ser capaz de:
Pré-requisitos:
1 – Introdução aos Esquemas Elétricos
2 – Símbolos Elétricos Normalizados
3 – Componentes Elétricos no Esquema
4 – Leitura de Esquemas de Comando
5 – Leitura de Esquemas de Potência
6 – Desenho/representação em software de esquemas elétricos simples
7 – Exercícios Práticos
DURAÇÃO: 15h
DATAS/HORÁRIO:
07,08,09,15 e 16/07/2026 das 19:00 às 22:00.
MODALITY:
O curso será realizado online, em tempo real, com formador especialista na matéria.